Experimentelles Lehmhaus

2023 – 2026
Experimental Earth House
  • Bauherrschaft Client
    Privat private
  • Typ Type
    Neubau, Wohnen New Construction, Residential
  • Ort Location
    Wien Wien
  • Stand Status
    In Planung In Planning
  • Baukosten BKP 1-9 Costs
skizze-02
  • Bauherrschaft Client
    Privat private
  • Typ Type
    Neubau, Wohnen New Construction, Residential
  • Ort Location
    Wien Wien
  • Stand Status
    In Planung In Planning
  • Baukosten BKP 1-9 Costs

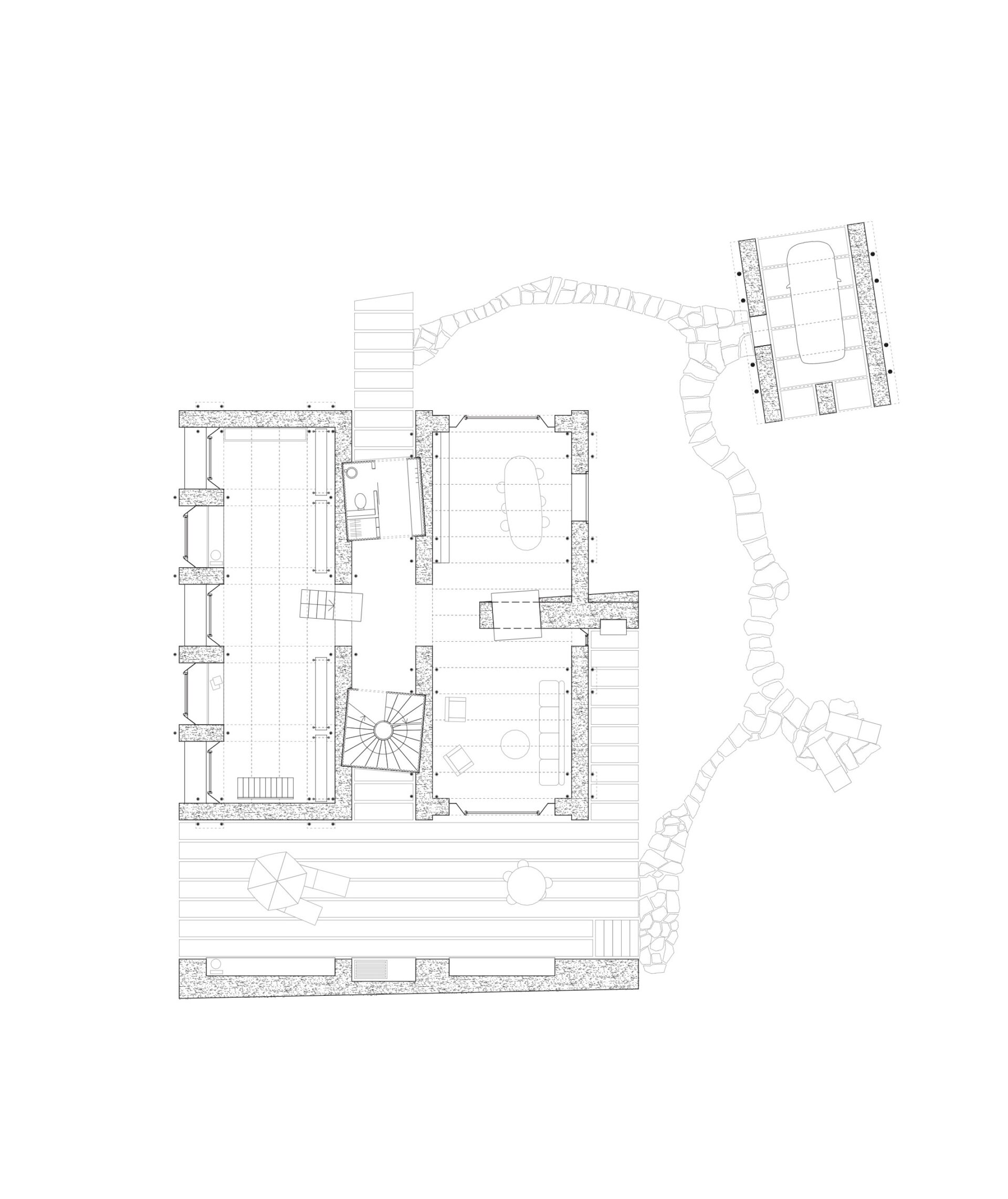
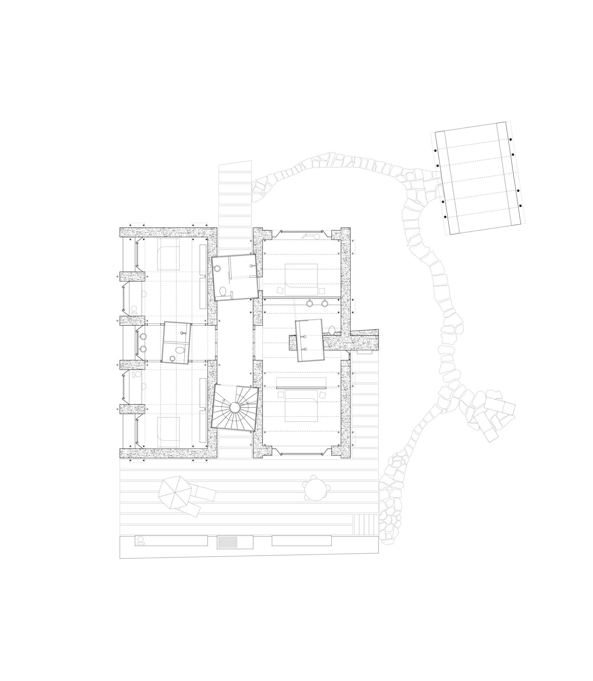
Das Experimentelle Lehmhaus wird als Ersatzneubau im 13. Wiener Bezirk als vorgespannte Lehm-Stahl-Hybridstruktur errichtet. Im Rahmen des Entwurfs wird eine innovative und dämmende Bauweise in Lehm angestrebt, in der Tragstruktur und Gebäudehülle monolithisch vereint werden. Das Projekt soll einen ambitionierten und interdisziplinären Beitrag zur Lehmbau-Forschung leisten.

In unmittelbarer Nähe zur Werkbundsiedlung in Wien liegt das Eckgrundstück für das geplante Wohnhaus. Das bestehende dreigeschossige Gebäude (Unter-, Erd- und Obergeschoss) wird abgerissen, wobei die Ziegelsteine recycelt werden könnten. Zufahrt und Zugang erfolgen über die Seifertstrasse im Norden. Das Haus wird Nord-Süd-orientiert in einen baumreichen Garten eingebettet und fügt sich harmonisch in die Umgebung ein. Es müssen 13 neue Bäume gepflanzt werden. Terrasse und Garage erhalten Lehmsteine mit begrünten Fugen, um Versiegelung und Hitzebildung zu vermeiden. Eine Stampflehm-Stützmauer fasst die Terrasse ein. Die Garage wird als Lehm-Stahl-Hybridstruktur errichtet und dient Forschungszwecken für das Hauptgebäude.

Die äussere Erscheinung des Neubaus wird durch die Dialektik von Lehm- und Stahlstruktur geprägt. Filigrane Stahlelemente kontrastieren mit der rauen Oberfläche des Stampflehms. Trag- und Fassadenelemente sind sichtbar und raumbildend. Böden aus Lehm-Terrazzo und Stampflehmwände schaffen eine warme Atmosphäre. Spundwand-Decken erzeugen eine reliefierte Untersicht, Vorspannungen sind sichtbar. Metallische Elemente sind grün eingefärbt. Grosse Fenster sind festverglast mit opaken Lüftungsflügeln und aussenliegender Verschattung. Holzwerkstoff-Innentüren und die Küche tragen zur wohnlichen Atmosphäre bei. Nasszellen haben Leichtbau-Installationsvorwände und Fliesen. Die selbsttragende Stahl-Treppe steht im lichtdurchfluteten Erschliessungskörper. Mobiliar der Bibliothek passt zur Lehm-Stahl-Hybridkonstruktion. Kunstsammlung und Archiv im Untergeschoss erhalten natürliche Belichtung durch Glasbaustein-Oberlichter. Stampflehm-Vorsatzschalen vor den Stahlbetonwänden schaffen eine einheitliche Ästhetik, und im Schwimmbad dienen sie als Feuchtigkeitsschutz, wobei Pool-Wasser-Flächen gefliest werden.

The experimental earth house is being constructed as a replacement building in Vienna’s 13th district as a prestressed earth-steel hybrid structure. The design aims to achieve an innovative and insulating construction method in earth, in which the load-bearing structure and building envelope are monolithically combined. The project is intended to make an ambitious and interdisciplinary contribution to earth building research.

The corner plot for the planned residential building is located in the immediate vicinity of the Werkbund Estate in Vienna. The existing three-storey building (lower, ground and upper floors) will be demolished and the bricks could be recycled. Access will be via Seifertstrasse to the north. The house will be embedded in a tree-filled garden facing north-south and will blend harmoniously into the surroundings. 13 new trees will have to be planted. The terrace and garage will have earth bricks with greened joints to prevent sealing and heat build-up. A rammed earth retaining wall surrounds the terrace. The garage is built as an earth-steel hybrid structure and serves research purposes for the main building.

The external appearance of the new building is characterized by the dialectic of earth and steel structure. Filigree steel elements contrast with the rough surface of the rammed earth. Load-bearing and facade elements are visible and create space. Earth terrazzo floors and rammed earth walls create a warm atmosphere. Sheet pile ceilings create a relief soffit, with visible prestressing. Metallic elements are colored green. Large windows are fixed glazed with opaque ventilation sashes and external shading. Wood-based interior doors and the kitchen contribute to the homely atmosphere. Wet rooms have lightweight installation partitions and tiles. The self-supporting steel staircase is located in the light-flooded circulation area. Library furniture matches the earth-steel hybrid construction. The art collection and archive in the basement receive natural light through glass block skylights. Rammed earth facing shells in front of the reinforced concrete walls create a uniform aesthetic, and in the swimming pool they serve as moisture protection, with pool water surfaces being tiled.